駅を出てすぐ、花屋さん。
ちゃんと見てる日もあるし、横目で通りすぎる日もある。
でも、あそこに花があるっていうのが、ちょっといい。
静かな道を抜けて、
車の音が増えてきたなと思ったら、自動車学校の看板が見えてくる。
そこを曲がって、まっすぐ。
いつもの道だけど、今日はなんだか風が気持ちいい。
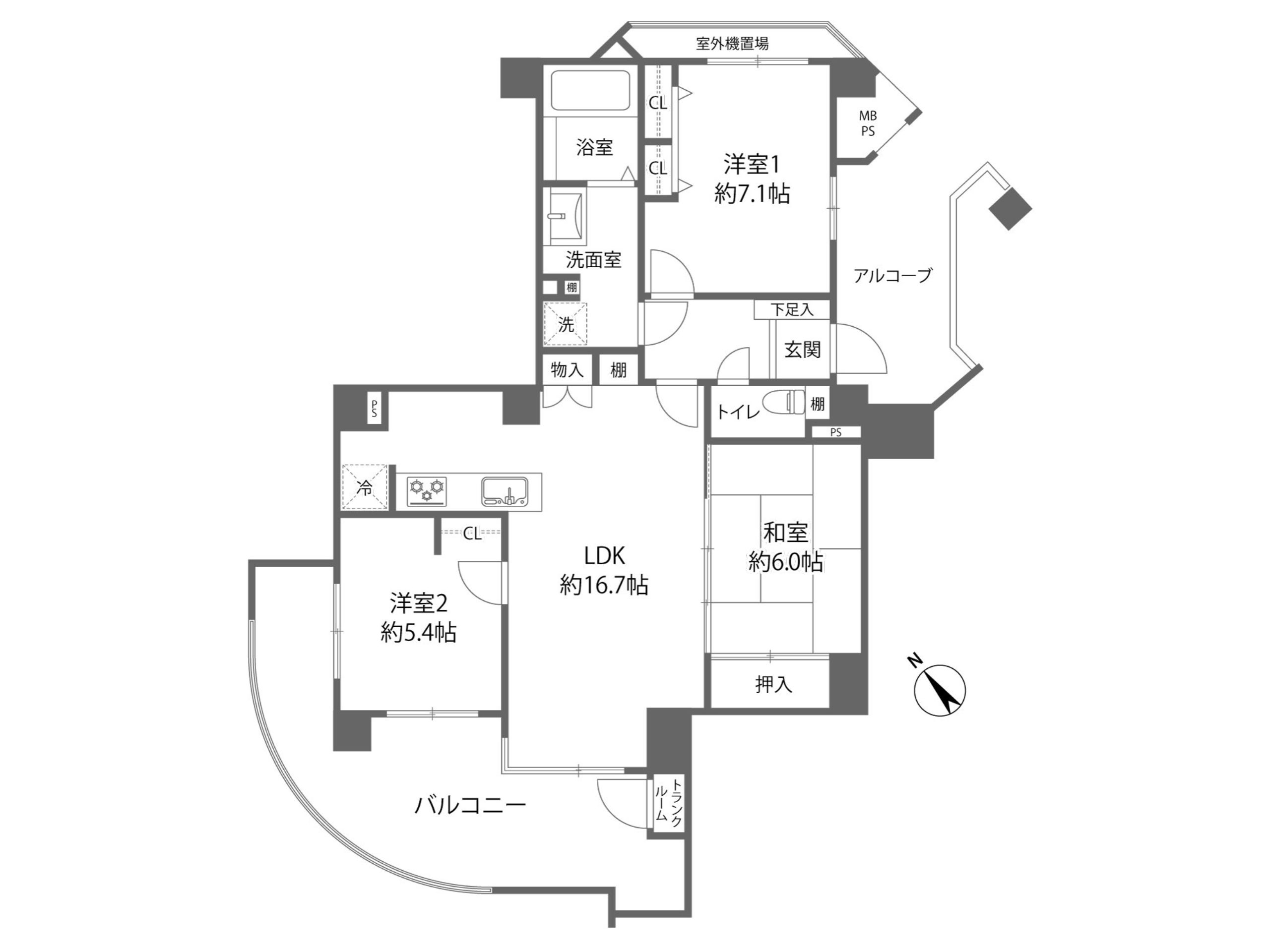
玄関の前には、ちょっと広めのアルコーブ。
ベビーカーでも、アウトドアグッズでも、
「とりあえず置いとこう」ができるの、なんだか安心する。
部屋はね、夕方がいいんです。
西のバルコニーから、オレンジ色の光がふんわり差し込む。
うまくいかなかった日も、「まあいっか」と思える明るさ。
キッチンは壁付け。
でもシンクがすこしだけ顔を出してて、
こもってるのに、ちゃんとつながってる。そんな感じ。
あの子(たぶん猫)はきっと、この窓辺でずっと昼寝してる気がする。
そう思うだけで、空気がやさしくなる。
この家は、そういう場所。

















 
                        
                                                     
                        
                                                    