物件No.240 レンタル

松戸 | 「小さく始める」土間キッチンテラスプラン【つながる古民家 隠居屋 IN kyo-Ya】古民家レンタルスペース

 
飲食店
イベント
POP UP
商用撮影
ミーティング
パーティー
プラン 土間キッチンテラスプラン
利用料金 2,000円 / 1時間〜
利用時間 9:00-21:00
所在地 千葉県松戸市南花島中町196
最寄駅 JR常磐線北松戸駅 徒歩11分 JR常磐線松戸駅 徒歩18分
会場タイプ レンタルスペース
広さ 着席12名(テーブル3席6名 *テラス利用応相談)・立食12名/ 109.60㎡

松戸の趣ある空間で、あなたの”やってみたい”を形にする。大正時代の古民家を改装したレンタルスペース

松戸・南花島エリアに佇む、築100年の古民家を改装した空間「隠居屋」。

懐かしいのに新しい

この場所は、単なるレンタルスペースではなく、人々が集い、新しい挑戦が生まれる場所として、オーナーが長年の想いを込めて大切に蘇らせました。

関東大震災にも耐えた立派な建物を活かしつつ、使いやすいよう水回りを新設。

当時の建具が残る落ち着いた空気と、まるで田舎のおばあちゃんの家に遊びに来たような温かな雰囲気が魅力です。

「小さく、賢く、始めたい」あなたのチャレンジを応援します

これまでトークイベント、ジャズライブ、マルシェ、子ども食堂など多岐にわたるイベントに利用されてきた隠居屋ですが、今回は特に、これからカフェや飲食店、食に関する事業や、物販を始めてみたいという方にもおすすめです。

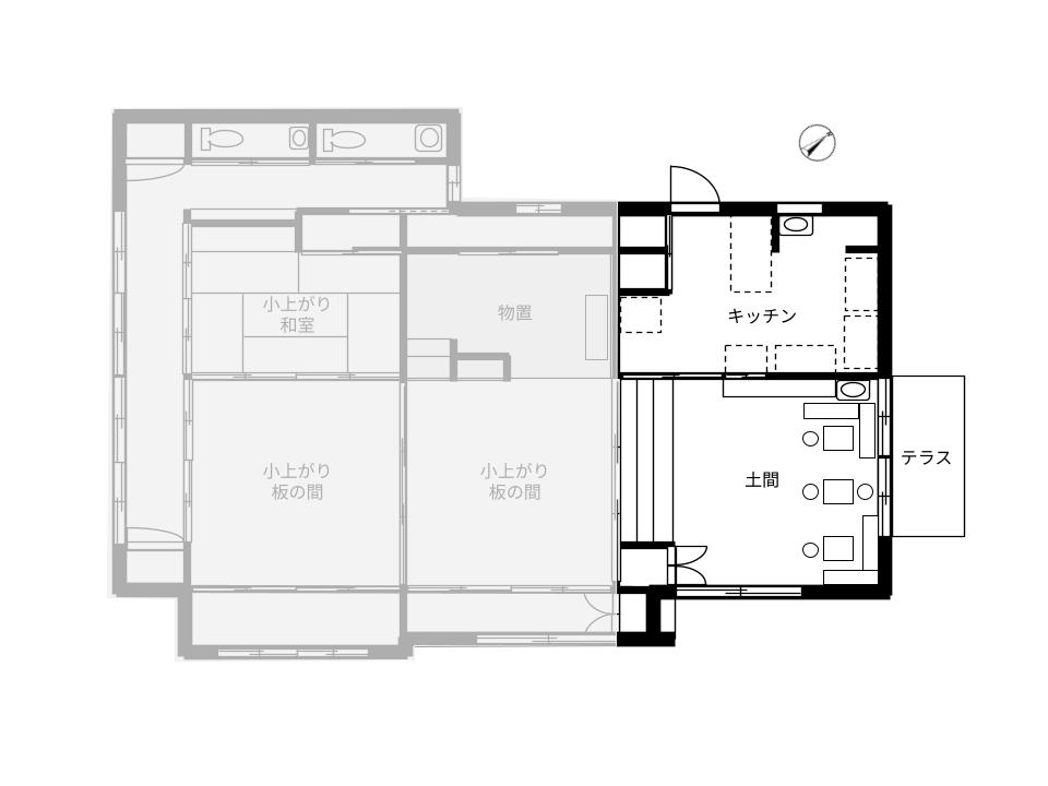
【土間キッチンテラスプラン】

利用可能スペース:入口からすぐの土間スペース、キッチン、テラス

広々としたキッチンは飲食店営業許可・菓子製造業許可 取得済み。初期投資を抑え、すぐに飲食事業をスタートしたい方に最適です。

席数は多くありませんが、その分、個人や少人数で「小さくスタートしたい」「テストマーケティングをしたい」という方にもぴったりのサイズ感です。

野菜をメインにしたおばんざいカフェ、しっとりとした雰囲気で夜も楽しめるビストロ、こだわりのスイーツ販売や料理教室など、使い道はいろいろ。

「こんなことがやってみたいけれど、、、」と、一人ではなかなか踏み出せずにいる方も、お気軽にご相談ください。「ここで新しい道を歩み出す人たちを応援したい」という優しいオーナーと一緒に、お待ちしています。

利用料金詳細

■利用料金
2,000円/1時間 
25,000円/day
◇最低利用時間3時間(6,000円)〜
※時間貸しご利用の場合、1時間単位でのご予約をお願いいたします。

・レンタル時間内での後片付け、清掃、原状復帰をお願いいたします。
・片付け・現状復帰の所要時間は1時間以上をお考えください。(現状復帰の内容は事前にお知らせいたします。)
*利用時間など詳細は応相談

※同じ母屋内小上がりは別プランのレンタルスペースとなりますので、 他の利用者がいらっしゃる場合がございます。
※トイレは敷地内の蔵カフェ雨讀と共用です。

◇商用撮影
 15,000円/1時間
 事前に企画審査がございます。

利用条件

・ご利用用途:
 イベント、ワークショップなど(飲食店許可・菓子製造許可取得済みキッチン利用可能)
 詳細については応相談

・貸出にあたっては、隠居屋 IN kyo-Yaのコンセプトをご理解いただいた上で、事前に利用用途を確認させていただきます。
 企画審査及び面談を実施する場合がございます。

<平日定期利用の方>
・割引あり:定期利用 毎月1回〜

■学生のみでのご利用はご遠慮いただいております。保護者の方のご同席をお願いいたします。

設備・備品

■インテリア
・背もたれ付き椅子:2脚
・テーブル:2人掛け×3
・ベンチ(大):2台
・ベンチ(小):2台

■食器・カトラリー
・小皿
・スープ皿
・パーティ皿
・ナイフ・フォーク・スプーン・サーバースプーン
・ワイングラス
・コーヒーカップ
など

■厨房器具
・包丁(大・小)
・まな板
・鍋(大・小)
・ボウル・ざる(各サイズ)
・バット(各サイズ)
・フライパン
・レードル(おたま)
など

■厨房設備
・業務用コンロ(大2口、小2口)
・業務用オーブン
・冷蔵庫 1台  *製氷機なし
・流し台
・電子レンジ
・炊飯器
・コーヒーメーカー
など

サービス

・駐車場:4台まで利用可能(他コインパーキングあり)

・飲食店営業許可取得済み

・菓子製造許可取得済み

・楽器演奏応相談

その他

■利用可能時間は準備/片付け時間を含みます。

■収容人数はレイアウトと実際の席数などは異なりますのでご了承ください。

■ご利用可能場所:原則建物内のみ
・庭の利用は企画内容をご提示の上、お問い合わせください。

■グラス・食器の機材の破損について
・ワイングラス・コリンズ・ジョッキの破損に関しては基本的に1個1,000円の代金を当日現金にて精算して頂きます。
・食器類・その他高額グラスの破損に関しては、該当商品の価格を当日での現金精算となります
・調理器具・機材・壁の重度の汚れ・インテリアの破損に関しては該当の金額、および通常営業に支障をきたす場合は営業補償の金額を請求させて頂くことになりますのでご注意ください。

■アクセス
・徒歩の場合
JR常磐線松戸駅より徒歩18分/JR常磐線各駅停車北松戸駅より徒歩11分/新京成線上本郷駅より徒歩15分
・バスの場合
JR常磐線・新京成線 松戸駅東口「松12 県立松戸高校行」または「松13 総合医療センター行」に乗車、「花島」下車 徒歩2分

◾️キャンセル料金
・利用日の2週間前〜前日:利用料金の30%
・利用日当日キャンセル:利用料金の100%

■その他
・片付け・現状復帰の時間は1時間以上をお考えください。
・常駐するスタッフはおりません。
・原状回復必須となります。
・敷地内は全面禁煙です。  
・レンタル料に電気・ガス・水道利用料が含まれています。
・円滑な運営のため、事前に企画内容を確認させて頂きます。場合によってはお断りするケースもございますが、あらかじめご了承下さいませ。

※小上がりスペースは別プランとなりますので、 ご利用時、他の利用者がいらっしゃる場合がございます。
※入り口・トイレは全利用者と共通です。

おすすめレンタルスペース