松戸・南花島エリアにある、大正時代の古民家を改装したスペース「隠居屋」。
「人々が集まれる空間をつくりたい」という思いをもったオーナーさんが、片付けから改装まで、時間をかけて大切に進められてきました。
これまでトークイベントやジャズライブ、マルシェや子ども食堂など、様々なイベントが行われています。
「一棟まるまる貸しプラン」は、名前の通り隠居屋を1棟まるっと!お使いいただけるプランです。
場所は松戸市南花島。最寄りのJR北松戸駅からは徒歩11分、JR松戸駅からは徒歩20分以内ですが、隣接する駐車場を4台までお使いいただけます。
(隠居屋から歩いて2,3分のところにバスの停留所もあります。)
建物は、大正時代に建てられ、関東大震災にも耐えたという立派なもの。
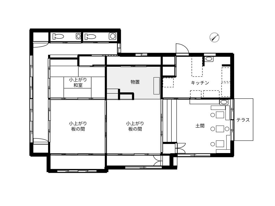
当時から使われていた建具はそのままに、そこに現代でも使いやすいよう、和室を板の間に変えたり、水回りを新設したり、土間を新たに作っています。また、飲食店許可を取得している台所には、業務用のコンロやオーブンが備え付けられ、広い作業台もあります。
平日はキッチン・小上がり部分を別々にお貸し出ししているのですが、こちらのプランでは、キッチン・土間・小上がりをすべてご利用いただけます。
1DAY マルシェなど、古民家全体を使ったイベントを開催できますし、アップライトピアノをご利用いただくこともできるので、フードも楽しめるコンサートもいいかも♪
隠居屋には古民家ならではの落ち着いた空気がありつつも、田舎のおばあちゃんの家に遊びに来たような懐かしい空気も流れていて、イベントなどで来られた方は、長居される方も少なくありません。
何より、以前使われていたおじいさまやご家族との思い出の場所を残したいという思いで改装を進め、オープンしてからは子ども食堂やギャラリーも運営するなど自ら動き出しているオーナーさんのもと、新しい道を歩き出した古民家を使っていただける機会は滅多にないと思います。
隠居屋と一緒に、新しい道をつくっていきたいという方のご応募お待ちしています!
*これまでの隠居屋でのイベントの様子は、以下をご覧ください。
「古民家お座敷フォーラム」(トークイベント)
「古民家ジャズキッチン」(ジャズライブ)
「古民家マルシェ」
「うつをみ」中川絢音(水中めがね∞)×山道弥栄
「咖喱と珈琲と音楽と Vol. 1」曽我部恵一弾き語りコンサート





















