マンションでは当たり前の鉄筋コンクリート造ですが、戸建では実はけっこう珍しいんです。
今回ご紹介するのは、鎌ケ谷市中央、新鎌ヶ谷駅から徒歩13分のところにある、
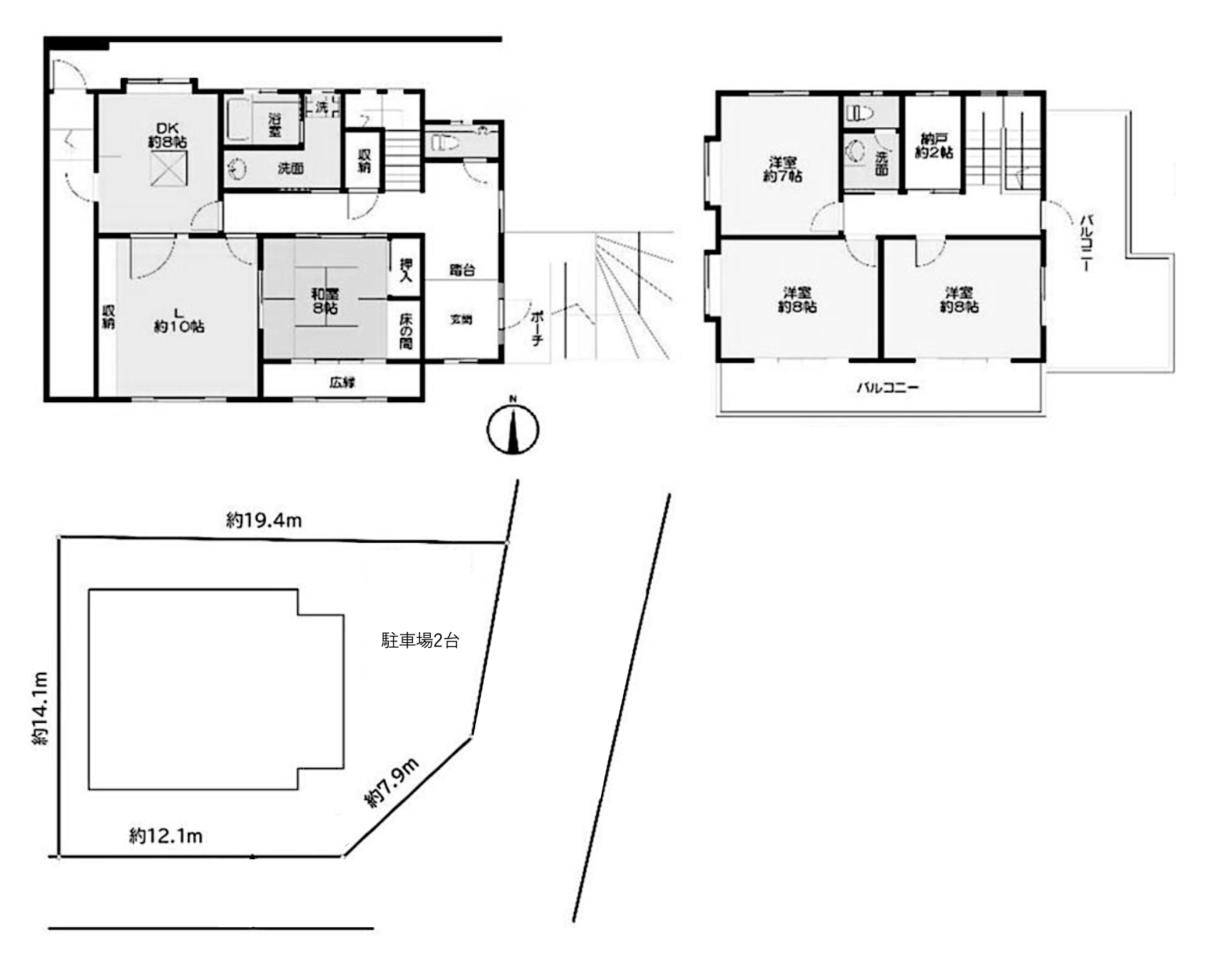
土地241㎡、建物162㎡(地下収納付き!)の大きな戸建。
鉄道三路線が使える便利な立地。公園も目の前で、東と南側が道路で日当たりも◎。
鉄筋コンクリート造のメリットは木造と比較すると、
・耐震性に優れている
・耐久性、耐火性、防音性に優れている
・構造によっては、間取りの可変性に優れている
などがあります。
この物件はそんな鉄筋コンクリートでしか
なかなかできない広々した空間や、重厚な雰囲気があります。
1983年に建てられた建物ですが、
レトロな内装、職人さんの技術が詰まった造りなっています。
こんな建物なかなかないですね!
玄関ドアの植物柄のガラス、立体的なカーブが綺麗な左官仕上げの壁、
アクセントで焼き物タイルの仕上げ、木目の天井材、竹であしらった出窓、などなど。
広々した暮らし、個性のある暮らしを楽しみたい方、
ぜひ一度ご内見をされてみてはいかがでしょうか?


























