たとえば、ですが、
「どこで暮らそうか」じゃなくて、
「どこで、なにをつくっていこうか」と考えてみるとします。
するとね、探してる場所って、なんだかちょっと変わってくる。
駅近とか便利さとかよりも、「落ち着く音がするかどうか」とか、
「床に、なにか広げたくなるかどうか」とか、
そんな基準が、ふいに顔を出してくるのです。
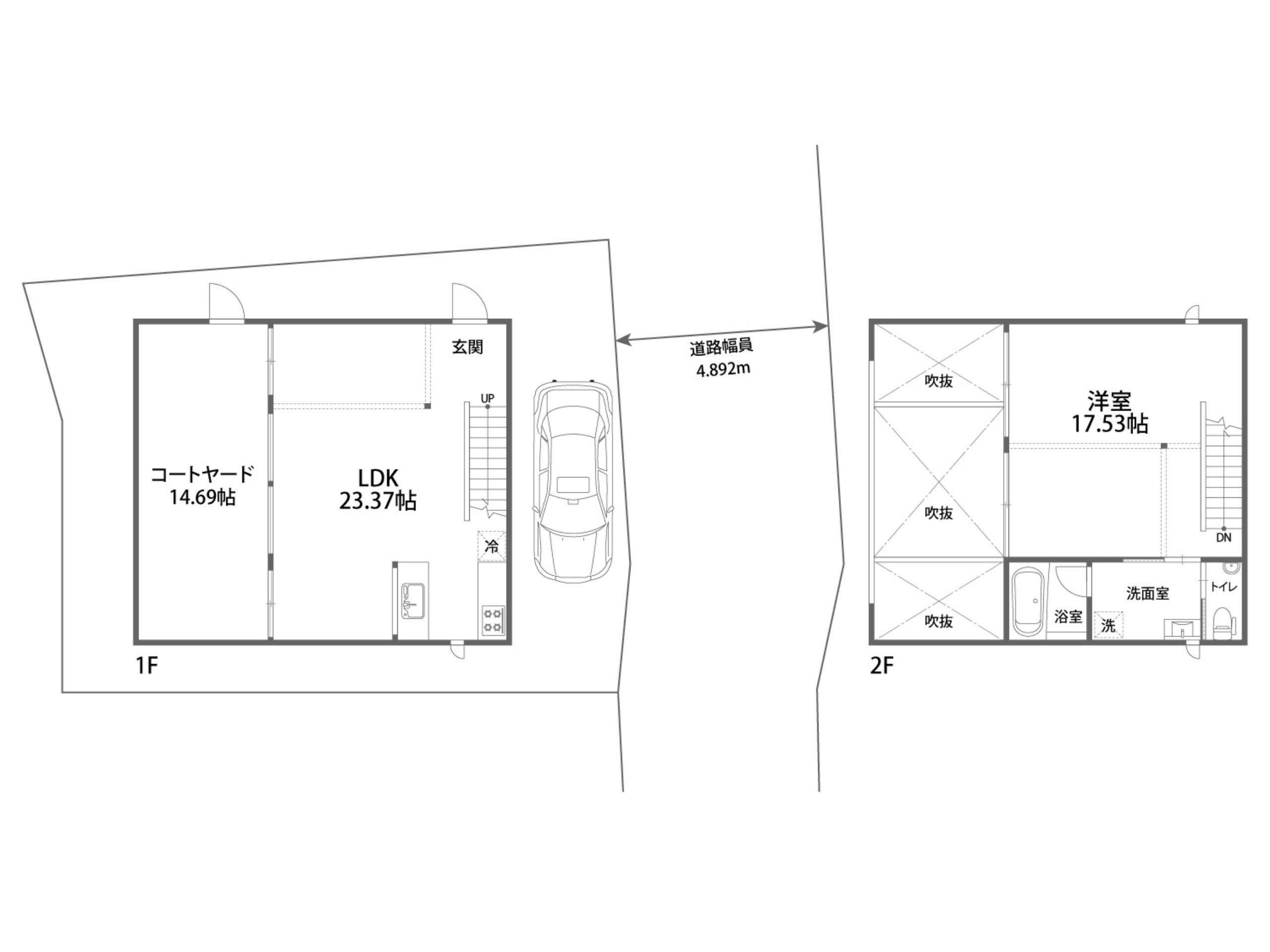
この家は、新築です。
けれど「ただの真新しさ」ではなくて、
使いはじめたくなる「余白」みたいなものがある。
たとえるなら、ぴかぴかのスケッチブックじゃなくて、
紙の手ざわりがちょっと気持ちいい、少し厚みのある画用紙。
1階の床は、タイル。
裸足で歩くと、しゃっきり冷たい。
でも、それが気持ちいい。
筆とか、ノコギリとか、カップとか、床にそのまま置いても、
怒られない感じがする。むしろ「さあ、どうぞ」って言われてるみたい。
2階に上がると、
すこしだけ空気がふわっと変わります。
足元は、檜の無垢材。踏みしめると、音じゃなくて感触が返ってくる。
ほんのり香る木の匂いと、やわらかな肌ざわり。
「はぁ~…」って、思わず声に出ちゃうかもしれません。
壁は、刷毛のあとがそのまま残っていて、
ざらりとした塗り肌がなんとも人間っぽい。
家具や本や絵が増えていくたびに、
家そのものが、どんどん“あなたの一部”になっていく。
育てる、ってこういうことかなと思う。
光は、庭からひと方向だけ。
でも、それがすごくいい。
まっすぐじゃない光は、壁や床に反射して、
朝・昼・夕方で、まるで違う表情になる。
この家では、「光」も素材のひとつなんです。
そして間取りは、
どこがリビングで、どこが寝室で…というより、
「今日の気分で、場所を決めてください」っていう余白のあるつくり。
食事も、創作も、読書も、
全部がちょっとずつ混ざって、日々ができあがっていくような。
なんというか、
この家は「住む」っていうより、「使っていく」家なんです。
しかも、「使い古す」じゃなくて、「使うほどに、よくなる」。
設計した人は、そこまでちゃんと考えて、つくったんだと思う。
もし、今あなたが
「うーん、でも、実際どんな家なんだろう?」と
少しでも気になったなら。
ぜひ、見にきてください。
この家は、目だけじゃなくて、からだで読む家だから。
床のかたさも、光のゆらぎも、
音のちょうどよさも、立って、歩いて、はじめてわかる。
この場所で、あなたは何をつくるんだろう。
そんな問いが浮かんでくる人に、
きっと、ぴったりの家です。
















